The Meadows

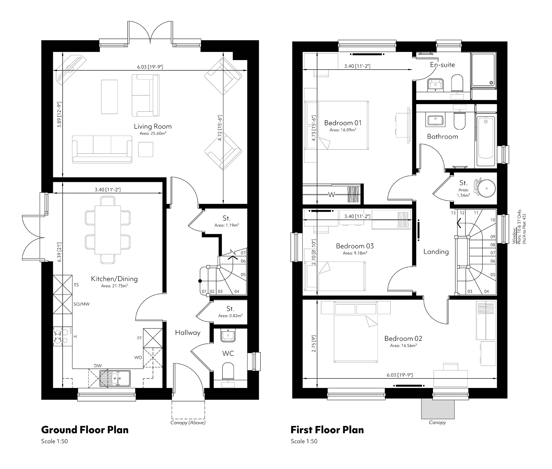
Plot 45 - The Willowmere

Book your appointment today*

Welcome to

Plot 45 - The Willowmere

A beautiful 3 bedroom detached home with parking

1340sqft | 3 Beds | Bathroom | Kitchen/Dining Room | Living room | En Suite | Garage & double parking space
The Meadows, Framfield Road, Blackboys, East Sussex TN22 5LS
£615,000
Book a viewing Request brochure
The Meadows

The Willowmere

Specification

KITCHEN FEATURES

  • The shaker style kitchen is equipped with a comprehensive range of wall and floor units, with stone worktops, 100mm up stand and splash back (to hob).
  • Fully integrated Bosch appliances to include; Induction hob and extractor, single oven, combination microwave oven and grill, fridge freezer and dishwasher.
  • Plots with utility area, will contain a space for washer/dryer machine.
  • Plots without Utility area have integrated washer dryer.

BATHROOM, EN-SUITES & CLOAKROOM

  • Contemporary white suites with chrome fittings.
  • Vanity units to bathroom.
  • Heated towel rail provided to the bathroom and en-suite.
  • Mirror and shaver socket provided to the bathroom and en suite.
  • Ceramic wall tiles to cloakroom, bathroom and en-suite.

ELECTRICAL AND MULTIMEDIA

  • White switch plates and sockets throughout.
  • Double socket with USB & USBC inserts to be included in kitchen, bedroom 1, living room and study.
  • Recessed down lights or pendant lighting to all rooms.
  • TV and telephone points provided to selected rooms with a provision for Sky (box, dish and subscription not included).
  • CAT6 cabling from master telephone point to TV position in selected rooms to allow for hardwired Internet access (subscription not included).
  • EV car charging station provided.
  • Power & light provided to loft area.

CENTRAL HEATING & HOT WATER

  • Underfloor heating to ground floor via Air Source Heat Pump with thermostat control.
  • Radiators to first floor with wireless thermostat.
  • Hot water controlled by thermostat.

PEACE OF MIND

  • Double glazed PVCu windows and doors with multi point locking system.
  • External lighting provided to external doors and 1 to rear elevation.
  • Mains fed smoke and heat alarms.

FINISHING TOUCHES

  • Vertical panel 44mm internal doors finished in a white gloss with chrome fittings.
  • White painted softwood staircase with oak handrail.
  • Sliding mirrored doors to any fitted wardrobes, with shelf and hanging space.
  • All internal joinery will consist of attractive skirting's and architraves finished in a white gloss
  • Amtico fitted to various ground floor areas, bathrooms and en suites - please ask for details.

EXTERNAL FEATURES

  • Landscaped front garden with feature planting.
  • Turf to rear garden with an area of patio.
  • External tap provided.
  • Driveway and Parking provided for 2 cars

AFTERCARE

  • Elivia Homes has a dedicated Customer Aftercare Department providing peace of mind for two years after you move into the property.

SERVICES

  • Mains electricity and drainage.
  • High speed fibre to the property. Final speed may vary depending on your local network and provider (subject to connection and subscription)

GUARANTEES

  • All the homes come with a ten-year LABC Warranty.

TENURE

  • Freehold.
  • PEA = B.
  • The Meadows benefits from a Residents Management Company with an annual service charge.

Site Plan

The Meadows

Book a Viewing